die Wohnung

 

      Home ] [ die Wohnung ] die Lage ] Konditionen ]          

 

 

 

Die helle Eigentumswohnung liegt im Dachgeschoss im 2. OG und  besteht aus einem großen Wohnzimmer mit großem überdachtem geklinkerten Balkon mit Blick ins Grüne, einem geräumigen gefliesten Flur, Badezimmer mit Badewanne und einem Schlafzimmer mit Blick zum Wald. Die Küche ist separat und hat eine schöne Einbauküche mit Geschirrspülmaschine. Außerdem steht ein Abstellraum zur Verfügung. 

Vom Flur aus erreicht man außerdem noch über eine Bodentreppe einen großen Raum im oberen Dachgeschoss mit Fenster Richtung Sachsenwald.

Die Wohnung hat außerdem einen großen separaten abschließbaren Kellerraum.

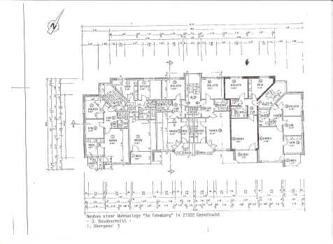
Die Wohnung liegt im DG rechts und hat ca. 57, 21 qm, d. h. ca. Schlafen, ca. 10,43, Küche ca. 6,68, Wohnen, ca. 24,09, Bad, ca. 5,63, Flur, ca. 6,17, Abstellraum unten, ca. 1,39, Loggia ca. 3, 65 ( laut mir vorliegendem Plan ).

Die Wohnung ist 2012 nochmals renoviert worden mit neuem hellen Laminatfußboden im Wohn- und Schlafzimmer.

Zur Wohnung gehört ein PKW - Stellplatz.

Die Wohnung ist derzeit noch vermietet.

 

Bilder:

 

 

Haus außen:

 

 

 

 

Wohnzimmer:

 

 

 

 

das Schlafzimmer:

 

 

 

 

 

 

Küche:

 

 

 

 

das Bad:

 

 

 

 

der Flur:

 

 

 

Grundriss: